您身边的防火玻璃与门窗生产专家
您真正需要的防火安全系统
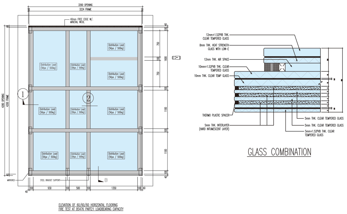
防火天顶地台
防火玻璃地台特点:
1.防火隔热60分钟、90分钟、 120分钟,地台每平方米承重500kg以上,达到水泥楼板的承重设计要求;
2.与其他固定式玻璃地台选用一样灵活,但经过精心设计以符合消防条例;
3.专业技术用于隔音和防火、隔热、实用可靠;
4.优雅豪华设计,以及美学设计,即使附近发生火灾,仍可走动。
★ 承重防火地台,天顶玻璃的测试
★ 依照欧标BS EN1365-2:2000和英标BS 476 : Part21 : 1987标准进行防火和承重测试。
产品节点图:
防火玻璃幕墙
防火玻璃隔墙