深入了解甲级防火窗及其设计应用

2019/6/1 4254619

防火窗,是新时代下经济生活的安全屏障。大家对防火窗有了解吗?国家不断出台相关规定政策法规来定义防火窗,致使业主对这种功能性的窗认识越来越多,需求也变得越来越大。下面由小编带领大家一起深入了解甲级防火窗及其设计应用。

甲级防火窗的定义:

防火窗,是指用钢窗框、钢窗扇或耐高温材料做成的窗并在窗框窗扇骨架内填充不燃材料,并配以防火玻璃及五金件所组成能满足相应等级要求的耐火完整性和隔热性窗。

根据国家标准《防火窗》GB16809-2008:


防火玻璃


甲级防火窗的防火性能与防火等级的规定:

耐火隔热性≥1.50h,且耐火完整性≥1.50h的防火窗属于A类1.50小时(甲级);

仅保持耐火完整性≥1.50h的防火窗属于C类耐火窗。

甲级防火窗属于国家强制性认证3C产品,必须在国家强制性产品认证通过之后才能进行生产、销售和使用。

而甲级防火窗的分类,按其窗框和窗扇框架的主要材料可分:甲级钢质防火窗、甲级木质防火窗、甲级钢木复合防火窗以及其他材质防火窗;按开启方式可分:甲级活动式防火窗,甲级固定式防火窗。

关于甲级防火窗的型号编制,见下图:


防火玻璃


以防火窗型号GFC 1518-D-A1.50为例,GFC表示钢质防火窗,规格型号为1518(即洞口标志宽度1500mm,标志高度1800mm),使用功能为固定式,耐火等级为A1.50(即耐火完整性时间不小于1.50h)。

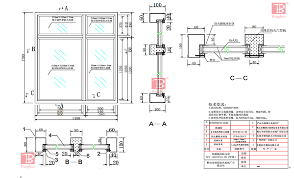
下面是甲级防火窗结构节点图:


防火玻璃


甲级防火窗由窗框、窗扇、复合隔热型防火玻璃、防火门闭门器、自动灭火系统用玻璃球、防火合页、拉手等组成。以甲级防火窗GFC 1518-D-A1.50(甲级)为例,其窗框采用1.2mm厚冷轧镀锌钢板制成,窗框内浇筑水泥砂浆。窗框中部横、竖框内填充珍珠岩防火门芯板;其隔热型防火玻璃由两层5mm浮法玻璃夹一层中空层内填充16mm防火液复合而成,防火玻璃总厚度26mm;窗扇防火玻璃受火面设玻璃压条,压条与窗框、窗扇之间均用M4*35mm自攻螺钉连接固定,螺钉间距200mm-300mm。防火玻璃与窗框及压条之间间隙处均设防火膨胀密封封条,受火面及背火面防火玻璃四周填塞玻璃胶。

经过测试,恒保甲级防火窗GFC 1518-D-A1.50(甲级)钢制防火窗耐火性能为1.50h,背火面平均温升134℃,最高温升171℃,符合规定的A1.50(甲级)耐火时间要求;其余检验项目均合格,是满足甲级防火窗检测要求的合格产品。

甲级防火窗的使用场所:

根据建筑设计防火规范-民用建筑:

1、两座建筑相邻较高一面外墙为防火墙;相邻两座高度相同的一、二级耐火等级建筑中相邻任一侧外墙为防火墙;高出相邻较低一座一、二级耐火等级建筑的屋面15m及以下范围内的开口部位设置甲级防火门、窗。[1]

2、中庭与周围连通空间的隔墙与周围连通空间应进行防火分隔:采用防火隔墙时,其耐火极限不应低于1.00h;采用防火玻璃墙时,其耐火隔热性和耐火完整性不应低于1.00h,采用耐火完整性不低于1.00h的非隔热性防火玻璃墙时,应设置自动喷水灭火系统进行保护;采用防火卷帘时,耐火极限不应低于3.00h;与中庭相连通的门、窗,应采用火灾时能自行关闭的甲级防火门、窗。[1]

3、锅炉房、变压器室等与其他部位之间应采用耐火极限不低于2.00h的防火隔墙和1.50h的不燃性楼板分隔。 在隔墙和楼板上不应开设洞口,确需在隔墙上设置门、窗时,应采用甲级防火门、窗。[1]

4、设备控制室、精密仪器存放室、地铁车站内的行车值班室或车站控制室、变电所、配电室、通信及信号机房、通风和空调机房、消防水泵房、灭火剂钢瓶室等重要设备用房甲级观察窗,或隔墙上的门及窗需采用甲级防火门窗的防火分区。[2]


因为甲级防火窗产品必须具有国家CCCF认证标志才是合格品,那么目前市面上有哪些规格型号的甲级防火窗供业主、施工单位选购呢?其中鹤山市恒保防火玻璃厂有限公司作为专业的甲级防火窗生产厂家提供以下优质甲级防火窗(咨询电话 13828027016):


防火玻璃


恒保甲级防火窗型号

 

作为一家拥有21年防火玻璃研究与生产经验的鹤山市恒保防火玻璃厂有限公司,已为您深入讲解了甲级防火窗及其设计应用,若有疑问欢迎留言或致电:13828027016,恒保公司将会为您一一解答!


文章原创自:鹤山市防火玻璃厂有限公司—http://www.hbglass.net/index.html


推荐新闻